
Parc de la Villette
En av de intressantaste internationella arkitekttävlingarna på 1980-talet var tävlingen om Parc de la Villette i Paris. De vann inte, men OMA och Rem Koolhaas borde ha vunnit.1
Den park som OMA föreslog är indelad i smala remsor, allesammans med inbördes helt olika program och av inbördes helt olika fysisk karaktär. En sådan remsa är kanske helt planterad med höga skuggande träd (bra för en sakta promenad en het sommardag), en annan består kanske uteslutande av tennis-, badminton- eller basketbollsplaner (för den sportigare typen av parkbesökare). Osv.





Remsorna sträcker sig allihop hela vägen från parkens öst- till dess västgräns, vilket är ganska långt (många badmintonplaner blir det). Men alla remsor är samtidigt mycket smala, vilket gör att avståndet från en remsa (skuggande träd) till en annan (basketbollsturnering) aldrig är långt. Om man ångrar sig (jag vill nog spela litet tennis idag förresten), då räcker det med ett att ta ett par korta steg över gränsen till remsan alldeles bredvid. Eller bege sig några remsor bort, vilket fortfarande inte är särskilt långt att gå. En nord-sydlig promenad innebär således att man efter vart och vartannat steg kommer att kliva över gränsen till en ny remsa och till ett helt nytt slags miljö, med ett program som helt skiljer sig från grannremsans. Om man sedan stannar upp, vrider sig 90° antingen åt höger eller vänster, och sedan promenerar fram och tillbaka uteslutande i öst-västlig riktning istället, då kan man vistas länge och röra sig stora sträckor inom ett och samma slags miljö (exempelvis i en stilla skog utan att någonsin behöva beblanda sig med sportfånarna på grannremsan alldeles bredvid).
Promenaden nord-syd är som
promenaden längs en stadsgata, med många olika fastigheter inom vilka ryms en mängd olika – och inte sällan helt oförutsägbara – verksamheter. Promenaden öst-väst är som
vistelsen i det privata, i det egna huset, på den egna tomten, där man är helt fri att sysselsätta sig med det slags verksamheter man själv valt att ägna sig åt utan att någonsin behöva bry sig om vad grannen sysslar med hemma hos sig. En mycket effektiv metafor för urbanitet, en mycket vacker metafor för Staden-med-stort-S.
Men stopp ett tag. Nu råkar jag händelsevis vara mycket misstänksam mot arkitektoniska metaforer, och särskilt misstänksam då mot staden
som arkitektonisk metafor. Är min spontana benägenhet att vilja tolka OMA:s och Rem Koolhaas förslag till Parc de la Villette som just en urban metafor – är denna min benägenhet suspekt? Lika suspekt som när husritande arkitekter utan att genera sig döper diverse mellanrum här och där mellan huskroppar utomhus (eller lika gärna inomhus) till torg
och gator
, utan saklig grund, bara för att det liksom låter bra
?
I dylika fall begår såväl de arkitekter som uttrycker sig på detta vis som den allmänhet de riktar sig till med sitt blomsterspråk inte sällan allesammans det fatala misstaget att okritiskt acceptera metaforen som något slags påstående om verkligheten – som om en metafor för stad är lika med stad
. Så är ju inte alls fallet.
Och kuriöst nog begränsar sig arkitekters okritiska och suspekta bruk av staden
, torget
, gatan
osv. som positivt klingande metafor inte bara till den dubiösa retorik som så ofta bäddar in våra dagars kvasi-urbana kvasi-kvartersstäder, även de gamla modernisterna tog i tid och otid till urbana
metaforer i sina projektbeskrivningar.


Le Corbusier, till exempel, han avskyr som bekant den trånga, mörka, vindlande stadsgatan, den får honom att tänka på en korridor, så när Le Corbusier i sina skrifter ständigt ondgör sig över la rue corridor, då använder han arkitekturtermen korridor
som en negativt klingande metafor för den urbana företeelsen gata. Å andra sidan tvekar han inte att inomhus förse sina hus med långa fönsterlösa korridorer, trots att termen korridor
av allt att döma klingar negativt i hans öron när det gäller stadsgator, utomhus. Och inte nog med det, den långa fönsterlösa korridoren i hans berömda serie med Unités d’habitations, den kallar han för rue intérieure, inomhus återupprättar han plötsligt den av honom utomhus så föraktade gatans ära, inomhus använder Le Corbusier med ens gata
som positivt laddad metafor för korridor. Samtidigt som han, kuriöst nog, använder korridor
som negativt laddad metafor för stadsgator. Vilken kullerbytta. Upp och ned, bak och fram. Motsägelsefullt och inkonsekvent.
I Storbritannien finner vi ett på sitt sätt närbesläktat exempel på suspekt användning av gatan
som metafor. I flera av efterkrigstidens housing estates använde britterna storskalig, brutalistisk arkitektur till att utplåna alla spår av kvartersstadens gator, men arkitekterna som ritat de nya bostadsområdena var, kuriöst nog, sitt uppenbara förakt för kvartersstaden till trots, samtidigt likväl mycket förtjusta i att kalla de nya bostadshusens loftgångar för gator
, för streets in the sky. Högt över de förhatliga gator man så effektivt utplånat i markplanet fick gatan
plötsligt i arkitekternas retorik tillbaka en positiv klang, högt uppe i luften, som metafor för loftgång. Vilken kullerbytta. Motsägelsefullt och inkonsekvent.




Visserligen var dessa streets in the sky inte sällan väsentligt bredare än sina svenska motsvarigheter, rentav körbara med fordon – det för Storbritannien så typiska mjölkbudet, the milkman, kunde inte sällan på dessa extra breda loftgångar köra från lägenhetsdörr till lägenhetsdörr med sin lilla mjölkbudsbil (!) – men att kalla loftgångar för gator
är alltid missvisande, med eller utan mjölkbud. En loftgång är en loftgång är en loftgång.
Tillbaka till arkitekttävlingen i Paris 1982. OMA:s och Rem Koolhaas förslag till park är – genialt, helt enkelt. I synnerhet om man jämför med den trista och förutsägbara röd-gröna röra som vann tävlingen.2
Jag har alltid varit oerhört förtjust i OMA:s geniala parkprojekt, i alla år. Men min misstänksamhet mot urbana metaforer är som sagt alltid stor, och även om vi alla litet till mans är benägna att ursäkta sanna genier ett och annat som vi inte skulle ursäkta hos andra, måste sanna geniers verk förstås granskas lika kritiskt som alla andras, och eftersom missbruket av urbana metaforer som sagt är legio bland arkitekter vore det egentligen allra mest förvånande om man i Koolhaas egen beskrivning av parkprojektet inte skulle finna en och annan suspekt urban metafor.
Men – rätta mig om jag har fel – mig veterligt påstår Rem Koolhaas faktiskt aldrig att hans projekt till randig park skulle vara stadsplanerad
. Han påstår aldrig att hans parkprojekt är en stadsplan
. Vilket hedrar honom! För det är den ju inte. Ränderna i parken motsvarar ju inte en fastighetsindelning, gränserna mellan band och remsor utgörs ju inte av juridiska tomtgränser, det är ju inte meningen att de olika ränderna skall kunna köpas och säljas som enskilda tomter på den fria fastighetsmarknaden, Koolhaas har ju aldrig någon som helst intention att ge upp sin konstnärliga kontroll över parkens helhetsgestaltning och komposition, han har ju ingen som helst intention att sprida ägandet och dela med sig av kontrollen över totalkonstverket. En park är en park är en park.
Jag kan således pusta ut – min egen benägenhet att genast tolka OMA:s parkprojekt som en metafor för urbanitet, denna min benägenhet må vara suspekt, det kanske den är, men den metafor Rem Koolhaas själv använder för att kommentera parkens randiga layout är gudskelov inte urban
, den är renodlat arkitektonisk:
The layering is not unlike the experience of a high-rise building, with its superimposed floors all capable of supporting different programmatic events, yet all contributing to a summation that is more than the accumulation of parts.
– Rem Koolhaas, OMA, Bruce Mau: SMLXL, Small Medium Large Extra-Large, 010 Publishers, Rotterdam 1995, s. 923.
Ja titta, i horisontalplanet (urban
i plan) är OMA:s Parc de la Villette inte olik Downtown Athletic Club i genomskärning, projicerad i vertikalplanet (urban
i sektion).
Eating oysters with boxing gloves, naked, on the nth floor—such is the plot
of the ninth story [of the Downtown Athletic Club], or, the 20th century in action.
– Rem Koolhaas: Delirious New York, 010 Publishers, Rotterdam 1994, s. 156.
Minsann, parkens randighet är, ställd på högkant, inte olik randigheten i en skyskrapas vertikalsektion. Inte bara rent grafiskt, utan även funktionellt, i det att randigheten i båda dessa fall – om än i det ena fallet i horisontalplanet medan i det andra fallet i vertikalplanet – skapar det slags hyperkoncentration och congestion i ett projekts programskrivning som Rem Koolhaas då när det begav sig, på 1980-talet, särskilt eftersträvade i många av sina arkitekturprojekt.
Parken är som
en skyskrapa som ligger ned! En promenad genom parken i nord-sydlig riktning, på tvärs över alla smala parkremsor i tur och ordning, det är som
att åka hiss i en skyskrapa! Osv. Vilket är ett bruk av metaforik (vertikalprojektion-för-planprojektion; arkitektur-för-arkitektur) som inte besvärar mig alls lika mycket som det alltid suspekta dragandet av paralleller mellan två inbördes såpass väsensskilda företeelser som Staden-med-stort-S å ena sidan och Arkitekturen-med-stort-A å den andra.
En metafor är en metafor är en metafor) i arkitekturtidskriften Kritik, Stockholm, nr 45-juni 2020.
Illustrationer
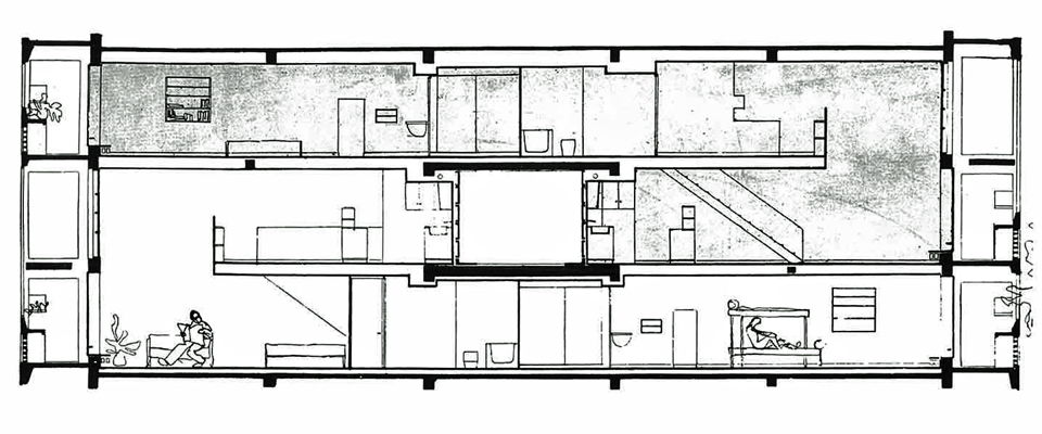
• Vertikalsektion genom Downtown Athletic Club, berömd skyskrapa på Manhattan, New York. Illustration från Rem Koolhaas: Delirious New York, 010 Publishers, Rotterdam (1994), s. 155.
• Efter det fem stycken illustrationsbilder av OMA:s tävlingsförslag i färg, inklusive ett par situationsplaner och ett modellfoto. Bildkälla: oma.com
• Le Corbusier: Unité d’habitation (Corbusierhaus på tyska), Berlin (dåvarande Västberlin, 1957). Ett typiskt exempel på projektets många centralt placerade, fönsterlösa korridorer, la rue intérieure. Foto: Branly Pérez. Bildkälla: metalocus.es
• Efter det arkitekten Le Corbusiers egenhändigt ritade vertikalsektion genom två av det gigantiska bostadskomplexets många etagelägenheter.
• Milkman with milkfloat on street in the sky, mjölbud med mjölkbudsbil på körbar loftgång, Park Hill Estate, Sheffield, England. Arkitekter: Jack Lynn, Ivor Smith (1957–1961). Stillbilder från dokumentärfilm för brittisk tv (BBC, 1966). Bildkälla: YouTube