
Om Eurohus
För snart tio år sedan får författaren och arkitekturkritikern Eva Eriksson spel och gör i en bland arkitekter vida spridd publikation (AT nr 6-1988) ett indignerat utfall mot kulturkändisen och oraklet Nils Petter Sundgren – en gång hela Sveriges filmkritiker med eget program, Filmkrönikan, på tv. Utfallet har förorsakats av att Nils Petter Sundgren lånat sitt namn och sin signatur till en reklambroschyr för kataloghusföretaget Eurohus, ett av det övermodiga åttiotalets success stories vad gäller villabyggandet (till stor förtret för den förfärade arkitektkåren).
Eva Eriksson citerar Eurohusbroschyrens rubrik Klassisk elegans och tidlös skönhet samt Nils Petter Sundgren själv (enligt broschyren): Nu rör sig designers fritt över historiens stilar och formglädjen blommar åter efter en lång, kall vinter. Eurohus befinner sig i täten för denna utveckling.
Eva Eriksson dånar (och arkitektkåren med henne) och anklagar de eklektiska Eurohusen för att vara av den arten att det går kalla kårar efter ryggraden på var och en som tycker att arkitektur är eller borde vara en konstart
. Eva Eriksson hävdar också att använda ordet arkitektur om dessa hus är helt missvisande
. Ja, varje läsare av denna tidskrift ser förmodligen med en blick vad jag menar.
Eva Eriksson tycker att en välkänd filmkritiker borde skämmas över att förleda folk till fel sorts husköp.
Varken Nils Petter Sundgrens reklamframträdande eller Eva Erikssons upprop väcker någon uppmärksamhet eller indignation utanför arkitekternas egna led, om ens där.

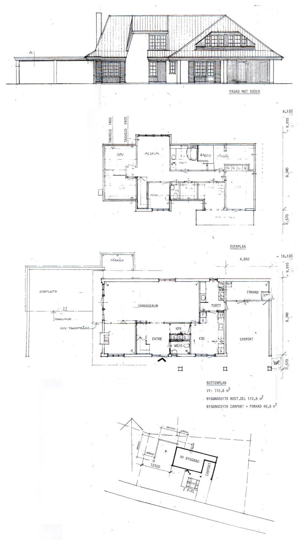
Året därpå däremot, hösten 1989, uppmärksammas Eurohus med ens på alla tidningars löpsedlar och förstasidor, men inte av de skäl som Eva Eriksson önskat. Det är bankdirektören Jacob Palmstiernas prefabricerade katalogvilla i Djursholm som det handlar om. Det råkar vara ett Eurohus. Efter en polisrazzia åtalas Jacob Palmstierna för skattefusk. I centrum av skattehärvan befinner sig villan. Huset har av banken/arbetsgivaren i åratal hyrts ut till Palmstierna för en struntsumma, långt under marknadspris, och därmed fungerat som en obeskattad löneförmån. Skattebetalarna har i praktiken subventionerat en välbärgad och privilegierad familjs boende. Jacob Palmstierna förlorar sin post i Skandinaviska Enskilda Bankens styrelse.
Tidningarna vältrar sig i och gottar sig åt Palmstiernas olycka. Bilder på lyxvillan
publiceras, adressen avslöjas. Men trots all skadeglädje tar man ingenstans tillfället i akt att raljera över bankdirektörens dåliga smak
. Nåja, det finns väl inget folk på tidningarna med bildning nog att förstå sig på sådant – eller? Inte någon annanstans heller, i så fall: lyxvillan
i Djursholm är i själva verket bara
ett stockholmskt pied-à-terre för den besuttne adelsmannen. Familjen äger och bebor i första hand slottet Maltesholm utanför Kristianstad. Familjen Palmstierna är inget patrask. Familjen Palmstierna hade därför aldrig flyttat in i katalogvillan i Djursholm om Jacob P. därigenom förlorat cred bland sina kollegor och konkurrenter, eller om det i adelskretsar och i landets finansiella elit befunnits olämpligt att demonstrera total avsaknad av arkitektonisk kunskap
(som vissa arkitekter hade uttryckt det) genom att frivilligt välja att bebo ett Eurohus.
En bankdirektör och adelsman i samhällets absoluta toppskikt och elit får på pälsen om han fifflar med skatten men (!) gör inte bort sig om han visar obefintligt intresse för och/eller dålig smak
vad gäller arkitektur. Arkitektur med stort A är inte viktigt
i samhällets topp. Inte heller på dess botten (bland tidningsmurvlarna). Är detta ett bildningsproblem, något som kan avhjälpas med fler år i skolan och ABF-kurser? Inte alls: en bildad och kultiverad rikskändis och kulturpersonlighet som Nils Petter Sundgren hade för länge sedan förlorat den cred han åtnjuter om han, då det begav sig, framträtt berusad framför tv-kameran, eller om han visat dåligt omdöme vad gäller betygsättningen av filmer, men han riskerade uppenbarligen ingenting alls bland kulturelitkollegor med klavertrampet (som arkitekter ser det) att göra reklam för icke-arkitektur
. Inte ens i kulturvärlden är arkitekternas mått på vad som är god arkitektur kända, eller ens intressanta. Inte ens bland kulturintresserade är arkitektur viktigt
. Arkitektur (till skillnad från byggande och bebyggande sådär i största allmänhet) är varken en allmänbildningsfråga eller en angelägenhet för andra än arkitekter:









Om vi skärskådar Eva Erikssons kritik (ovan) visar det sig ju att det inte framförs några som helst argument (det blir aldrig mer konkret än: Ja, varje läsare av denna tidskrift ser förmodligen med en blick vad jag menar.
). Hon vädjar till en fördömande koncensus (som absolut existerar bland arkitekter) utan att lyckas formulera – i termer som kan förstås av alla de olyckliga som inte redan äger arkitektårens värderingar – varför Eurohus är dåliga
, bara att de är det. Detta beror inte av att författaren saknar den sakkompetens eller den ordformuleringskonst som krävs för att formulera en kritik (vilket Fredrik Sundqvist kanske skulle hävda, eftersom denne i nr 5-1997 av Arkitektur, i en artikel under rubriken Estetens pedagogiska mission
, påstår att arkitekturens problem består i arkitekternas oförmåga eller ointresse att formulera sig). Så kan inte vara fallet här. Om någon kan formulera sig om arkitektur och stadsbyggande på ett kompetent sätt är det ju Eva Eriksson.
Den luddiga kritiken beror istället av att allmängiltig kritik mot Eurohus och annan icke-arkitektur
av oss i det sena nittonhundratalet ej kan formuleras. För ett femtiotal år sedan kunde gott byggnadsskick kritiseras i mätbara storheter (hygien, logistik, byggnadsteknisk ärlighet
), storheter som dock med tiden blivit överspelade eller suspekta (kritiken mot social ingenjörskonst, etc.). Ett Eurohus har lika stora sovrum, lika högt (eller lågt) i tak, lika mycket värmeisolering, och samma hygienstandard som de hus som arkitekter gillar (det har lagstiftning, bostadsforskning, byggnormer och statliga låneregler sett till). Allmänheten varken ser eller upplever någon skillnad vad gäller levnadsstandard.
All den indignation som 1988 bubblar i Eva Eriksson (likaväl som i resten av arkitektkåren), men som för allmänheten är tämligen obegriplig, föds ur visuella kodmeddelanden – koder som naturligtvis också jag kan uttolka (man har väl koll), men som jag samtidigt inser förmodligen vore helt utan mening, eller bärare av helt annan mening, om sammanhanget vore ett annat. D.v.s. indignationen (också min egen) föds helt och hållet ur godtyckligheter.
Den ovan nämnda artikeln av Fredrik Sundqvist (som händelsevis illustrerats bl.a. med en bild av ett Eurohus) har jag nyligen uppmanats att läsa och kommentera. Sundqvists uppsats tar sin utgångspunkt i en kritik av en av undertecknad tidigare publicerad text (Häpp!
, Arkitektur 3-1997). Den gången använde jag inte själv glosan eller begreppet godtycke
; det är Sundqvists ordval och förslag. Men Sundqvist har därmed verkligen uppfattat något som jag försökt uttrycka – i den mån man läser in det följande: arkitektur (till skillnad från bebyggande sådär i största allmänhet) är en godtycklig soppa av illa underbyggda värdeomdömen, där disciplinens inre logik, i den mån det finns någon sådan, är en från omvärlden isolerad företeelse som förlorat relevans utanför de egna leden.
Sundqvists därpå följande avståndstagande, samt dennes uttryckliga förhoppningar om att arkitekturen tvärt om faktiskt skulle kunna vara bärare av en kunskap som skulle kunna påstås vara allmängiltig och absolut, och därmed värd att försöka uppfostra allmänheten att uppskatta, är inte väl underbyggda:
Arkitekturen är dock en väsentlig del i samhällsbygget och därmed en angelägenhet för alla.
Min erfarenhet av arkitekter är att de ofta har goda skäl för sina svepande omdömen (fördömanden), när de väl bemödar sig att argumentera, men att det är just i ansträngningen som motståndet sitter. Det verkar bekvämare att betrakta sig som missförstådd estet, än att slåss för sin sakkunskap.
goda skälför
riktigarkitektur – annat än möjligen godtyckligheter? Jag ifrågasätter det absoluta värdet av att
uppfostra massorna– inte p.g.a. förakt för allmänheten (vilket insinueras av Sundqvist, och det är inte allt som insinueras), utan p.g.a. misstro mot den påstådda allmängiltigheten hos det som arkitekterna själva anser vara deras
kunskap.
För att arkitekter då skall ha något berättigande krävs välvilliga mecenater, eller att kårens goda smak oemotsagd får gälla som en allomfattande estetisk princip – ett krav som gränsar till fascism.
förståelseför arkitekturen och arkitekternas
kunskapsom arkitekter enligt min erfarenhet ständigt suktar efter. Sundqvist måste ha missat poängen att detta tillstånd inte är en fascistoid hierarki av arkitekter med oemotsagd makt över arkitekturen och därigenom makt över människorna, utan den traditionella metafysiska himmelshierarkin med gudarnas makt över alla människor, även över arkitekter (samma gudars makt över alla människor; någon annan allmängiltighet finns ej att hoppas på). Evig och total underkastelse för alla arkitekter – under ett kristet, muslimskt eller judiskt prästerskaps överhöghet.
Sundqvist trampar fel redan när han för sina resonemang och sina insinuationer oreflekterat förutsätter att arkitekter skall ha något berättigande
: detta är inte på något sätt ett axiom, utan en godtycklig (!) värdering och en självpåtagen intellektuell begränsning som inte kan ligga till grund för en förutsättningslös diskussion. Arkitektur med stort A kan inte längre göra anspråk på allmängiltighet på samma sätt som under efterkrigstiden (oavsett om detta var berättigat eller inte så fanns sådana anspråk). Arkitektkompetensens allmängiltighet och globala berättigande
är ingalunda självklar i framtiden. Arkitekturen blir allt mer ett särintresse.
Denna brist på allmängiltighet skall naturligtvis inte ses som en anomali eller ett problem
som kräver åtgärd (att folkdans eller frimärkssamlande är ett fåtals angelägenhet anses knappast av någon vara något problem, inte ens av de aktiva själva), men det är klart att det ändå svider i hjärtat hos dem (dvs. arkitekterna) som vigt sina liv åt en verksamhet som för inte alls länge sedan åtnjöt stor respekt och stort anseende i hela samhället. Snopet liksom. Och det är klart att individer utanför arkitekternas sorgliga disciplin (Fredrik Sundqvist, till exempel) – som i den egna sorgliga disciplinen/verkligheten upplever meningslöshet och kris (vilken disciplin är idag befriad från ett permanent kristillstånd?), och som därför fåfängt hyser förhoppningar om att genom att vända sig till arkitekturen få erfara allmängiltiga värden att hylla och uppfyllas av – inte vill höra på det örat (Sundqvist: Arkitekturen är [...] en väsentlig del i samhällsbygget och därmed en angelägenhet för alla.
).
Är jag defaitist? Jag misstror visserligen den mission som arkitektetablissemanget står för (när det formulerar sig, vilket inträffar trots allt), men finner en utmaning i kontemplerandet av arkitekternas nyvunna och totala ansvarslöshet/ansvarsfrihet vad gäller välståndet i samhället.
Godtyckligt) i tidskriften Arkitektur, Stockholm, nr 1-1998. Texten är ett svar på artikeln
Estetens pedagogiska missionav Fredrik Sundqvist (Arkitektur, nr 5-1997), som i sin tur är ett svar på en krönika av Askergren i samma publikation (Arkitektur, nr 3-1997): Häpp!
Rik arkitektur – arkitektur för rika
Att bo i Djursholm: Fredrik Lundberg, Jacob Palmstierna och arkitekturen
Ett citat av arkitekturkritikern Eva Eriksson utgjorde en av Mikael Askergrens utgångspunkter också i en text från 1996:
Hötorgsarkitektur
Illustrationer
• Frejavägen 12 (Villa Palmstierna)
• Frejavägen 18a
• Frejavägen 18b
• Friggavägen 1
• Friggavägen 3
• Götavägen 25b
• Lokevägen 12a
• Norevägen 4a
• Norevägen 4b
• Svitiodsvägen 4
Läs mer om denna serie bilder på artikelförfattarens blogg:
Eurohus Galore