
Att bo i Djursholm: Fredrik Lundberg, Jacob Palmstierna och arkitekturen
Fredrik Lundberg, stammande från Norrköpings byggmästar- och finansdynasti, köpte härom året hus vid tjusiga Strandvägen i Djursholm. Villan var vid köpet helt nyrenoverad och egentligen inte till salu men Lundbergs bud var mycket generöst, mer än dubbla marknadsvärdet sägs det. När den förre ägaren flyttat ut och ville lämna över husets nycklar berättas det att Fredrik Lundberg avfärdade erbjudandet med orden Det behövs inte!
Redan nästa dag körde en bulldozer (!) rakt genom den låsta ytterdörren. Samma byggjobbare som kärleksfullt renoverat huset lejdes att jämna det med marken. Flera av dem grät öppet under arbetet.
Den psykologiska effekten av rivningen har varit större än effekten av den nya villa som sedan byggdes på tomten. I Djursholm berättas fortfarande om bulldozern och gråtande byggjobbare. Man är innerst inne våldsamt imponerade av Fredrik Lundbergs respektlöshet. Han har uppenbarligen råd med vad som helst och är i stånd till vad som helst. Makt är sexigt. Om Fredrik Lundberg nöjt sig med att flytta in i det befintliga huset hade urinnevånarna knappt noterat nykomlingens ankomst. Ännu färre hade insett hur rik och mäktig han verkligen är. Idag vet alla vem Lundberg är och var han bor.
Bankdirektör Jacob Palmstierna hyrde en övernattningsvilla i Djursholm av sin arbetsgivare SE-banken men betalade bara bråkdelen av en marknadsmässig hyra. Enligt åklagaren en obeskattad löneförmån. I praktiken subventionerade skattebetalarna den välbeställde direktörens boende.

Av bilderna i alla tidningar i samband med rättegången framgick att lyxvillan
i själva verket var ett ordinärt prefabricerat kataloghus. För inte alls länge sedan hade platsbyggt och arkitektritat varit en självklarhet och det enda ståndsmässiga. Nästan alla villor som byggts i Djursholm genom åren har ritats av landets namnkunnigaste arkitekter. Under åttiotalet hände något. Många av villastadens stora naturtomter styckades. På avstyckningarna byggdes nya hus. Dessa nybyggen var dock i princip aldrig arkitektritade. Djursholm är numera fullt av prefabricerade kataloghus, och de som bor i dem är kultiverade, välutbildade och kapitalstarka. Det är inte av ekonomiska skäl man håller till godo med kataloghus. Rika djursholmare investerar sina pengar (och sin sinnlighet och sina intellekt) i annat än arkitektur.
Förra året antogs sammanlagt 238 elever till Sveriges arkitektutbildningar. Hundra år tidigare, 1897, sammanlagt två (!) stycken. En gång i tiden ritade arkitekter slott och palats och inte mycket mer. Arkitektkåren var liten och exklusiv och tjänade uteslutande de rika och mäktiga. De byggnader i vilka folk i allmänhet framlevde sina vardagsliv, sov, åt, arbetade, älskade (med andra ord nästan allt som byggdes) brydde sig arkitekterna inte om. Men i takt med att samhället i stort demokratiserades tvingades en attitydförändring fram. Genom att kovända och börja rita arbetarbostäder istället för palats hoppades arkitekterna på ett moraliskt existensberättigande också i den nya tiden, denna gång i folkmajoritetens tjänst.
När plötsligt alla arbetarbostäder skulle arkitektritas behövdes fler arkitekter. Det arkitektritade förlorade därmed alltmer sin exklusivitet, och därmed också sin attraktion för eliterna (det var ju för att hävda en överhöghet och exklusivitet som de rika och mäktiga anlitat arkitekter). Därför imponerar Fredrik Lundberg mer på sina fina grannar med sin respektlöshet när han river än med det arkitektritade hus han sedan bygger. Därför skäms inte Jacob Palmstierna över att bo i kataloghus.

Men att också allmänheten ratat det arkitektritade har tagit arkitekterna på sängen. Nittonhundratalets arkitektur har man ju velat utmåla som en altruistisk offensiv för folkets bästa. Kritiken mot förortsbyggande och social ingenjörskonst har dock visat att arkitektur inte blir demokratisk bara för att någon påstår att den är det. På sin höjd demokratistisk. Prefabricerade kataloghus har blivit ett alternativ till och en frizon bortom demokratismen, inte bara för grevar och baroner utan också för bönder och knegare. [De följande, avslutande raderna fanns ej med i reportaget som det trycktes i tidskriften Bibel 2-1998, de kom till användning vid ett senare tillfälle, se länk nedan:] Att arbetar- och medelklassen föredrar prefabricerat framför arkitektritat när de bygger nytt i förorter och skogsbackar beror inte av okunnighet eller dåligt med pengar. Exemplet Djursholm visar att inga pengar eller folkbildningsprojekt i världen kommer att leda till att arkitekter får rita fler hus.
Arkitekternas altruistiska offensiv var bara ett trick, defensiv självbevarelsedrift, ett försök att överleva feodalismens fall. Frågan är om kåren kommer att lyckas (överleva). Demokratismen ledde till en explosionsartad ansvällning i arkitektkårens storlek och produktion under nittonhundratalet, men när en stjärna växer explosionsartat och förvandlas till en gigantisk jättestjärna (det samma kommer en dag att ske med vår egen sol) kollapsar den kort därefter, slocknar och dör bort.
Appendix hösten 2000
Svenska Eurohus har enligt uppgift gått i konkurs. Verksamheten har flyttat till Sydamerika, till Chile, av alla ställen. Kolla in pampig flash-animation på chilensk hemsida, länk: www.eurohus.cl
Eurohus före detta chefsarkitekt Lars Axelsson har startat eget i Karlstad. Arkenhus, som firman heter, har en hemsida (slogan: Vanligt hus = vanlig kaviar, Arkenhus = svart kaviar), länk: www.arkenhus.com
Appendix hösten 2008
Med anledning av bankmannen Jacob Palmstiernas hösten 2008 nyutkomna memoarer, ett återbesök i den ökända Djursholmsvilla som Jacob Palmstierna bebodde (och som blev förstasidesstoff) 1989, länk till bloggtext med illustrationer:
Eurohus Galore
Arkitektur för rika) i tidskriften Bibel, Stockholm, nr 2-1998, i form av ett fotoreportage från den exklusiva stockholmsförorten.
Frejavägen 12 (Villa Palmstierna)
Frejavägen 18a
Frejavägen 18b
Friggavägen 1
Friggavägen 3
Götavägen 25b
Lokevägen 12a
Norevägen 4a
Norevägen 4b
Svitiodsvägen 4
Eurohus Galore
Djursholm
Mer av Mikael Askergren om Eurohus och prefabricerade kataloghus:
Om Eurohus
Rik arkitektur – arkitektur för rika
De avslutande raderna finns ej med i reportaget som det trycktes i tidskriften Bibel. Bilden/liknelsen från astronomins värld kom istället till användning i ett annat sammanhang:
Arkitekturens död
Illustrationer
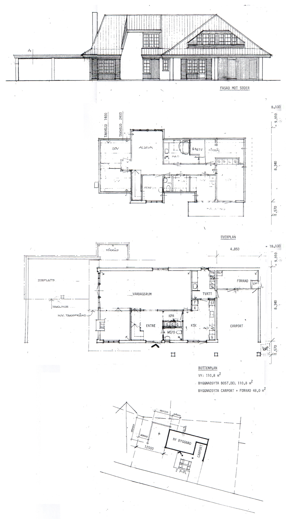
• Bygglovsritning från Danderyds kommuns offentliga ritningsarkiv. Ritningen föreställer den villa på Frejavägen 12 i Djursholm som Jacob Palmstierna bebodde 1989, året för villaskandalen.
• Fotoreportage från den exklusiva stockholmsförorten Djursholm i tidskriften Bibel, Stockholm, nr 2-1998, med text av Mikael Askergren och fotografier av Peter Cederling. Artikelförfattaren poserar för fotografen framför Jacob Palmstiernas ökända Eurohus på bildreportagets första bild av tio.